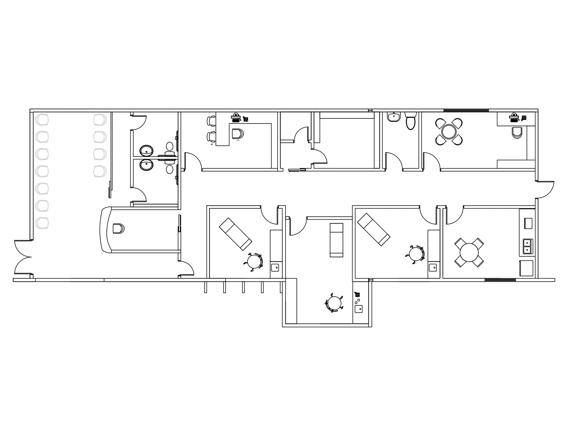
Interior Design proposal for a clinic of Puerto Rico's 330 Centers, implementing the Mid-Century Modern style