Work
About Me
Work
About Me
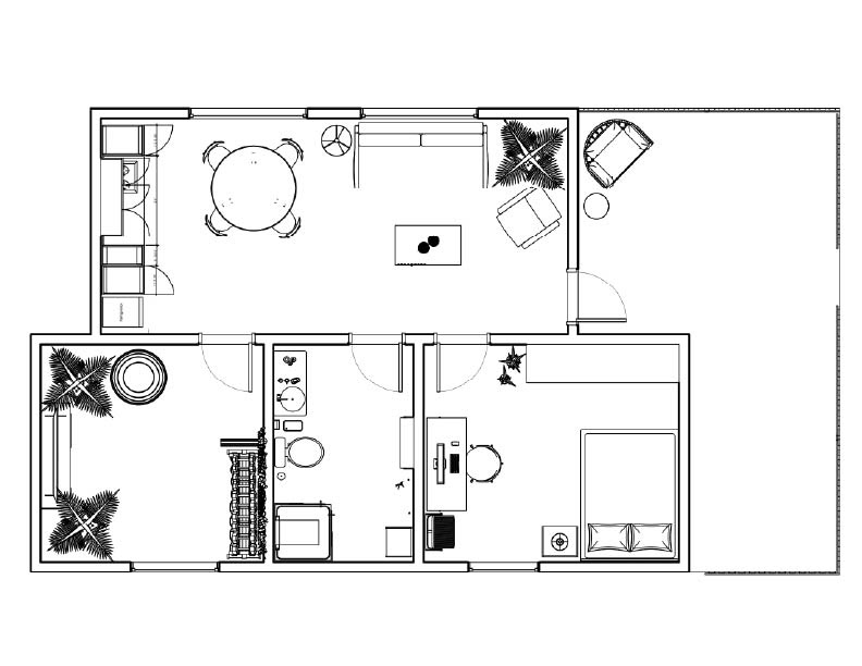
Tropical Apartment
Residential renovation project with a Tropical Modern design concept
↑
Back to Top